通体外墙板
相关产品
产品详情
万搏官方网页版-万搏(中国)通体外墙板采用波特兰水泥、天然矿物颜料及物质、石英、植物纤维等天然材料,经高温蒸压养护及高压处理而成的一种高密度复合型水泥板材,板材通体为同一颜色,表里一致,色彩多样,非常规色板还可量身定做。万搏官方网页版-万搏(中国)通体外墙板100%不含石棉及其他有害物质,在户外或室内使用,同批次产品不存在色差或表面褪色等问题,与其他外表做涂装或其他装饰处理的产品相比,万搏官方网页版-万搏(中国)通体外墙板性能更稳定,在恶劣环境中使用,性能尤为突出。万搏官方网页版-万搏(中国)通体外墙板功能强大,可做内外、墙节能及装饰覆层,功能及装饰一步到位。
【雄厚通体外墙板规格及性能】
A类材料,产销和使用范围不受限制,符合GB6566-2010
《建筑材料放射性核素限量》
根据GB8624-2012《建筑材料及制品燃烧性能分级》,燃烧性能达到A级
万搏官方网页版-万搏(中国)外墙板由于密度高,浸泡水中数月,产品品质不变。同时,其表面形成特殊防水层,雨水及其他液体在板表面形成水珠并迅速流走,防水性能优越
规格
单位
性能
密度
g/cm³
1.6(+/-0.1g/cm³ )
尺寸
mm
2440×1220×6-20
抗折强度
N/m㎡
≥18(饱水状态)
湿涨率
%
≤0.25
吸水率
%
≤28
导热系数
W/m.k
≤0.45
抗冲击
KJ/㎡
≥2.2
螺钉拔出力
N/nm
≥90
抗冻融
经25次冻融循环后无破裂、起层现象
石棉含量
100%不含石棉,符合HJ/T223-2005《轻质墙体板材》
放射性
燃烧性能
不透水性
【万搏官方网页版-万搏(中国)通体外墙板颜色丰富】
万搏官方网页版-万搏(中国)通体外墙板色彩丰富,除以下常规色系供选择,还可根据客户需求量身定做,满足设计及品味的要求。
万搏官方网页版-万搏(中国)通体外墙板采用天然矿物做颜料,通体一色,永不褪色。因原材料批次不同,产品颜色可能存在少许差异,图片与实物颜色也可能存在偏差,颜色以样品为准。

【万搏官方网页版-万搏(中国)通体外墙板优点】
1.隔热,万搏官方网页版-万搏(中国)通体外墙板作为建筑物内外墙覆层,内部水分可在空气循环中蒸发,避免冷凝水产生,炎热气候下起到隔热作用,减少能力使用;
2.保温,万搏官方网页版-万搏(中国)通体外墙板形成建筑外保温层,严寒天气下,可防止热量流失或交换,能有效保护建筑物外墙和主体结构;
3.节能,万搏官方网页版-万搏(中国)通体外墙板隔热保温性能优越,起到良好小气候调节作用,轻松化解剧烈温度和湿度变化带
来的影响;
4.通体颜色,采用天然矿物颜料,历久弥新,永不褪(变)色,无需维护,色彩多样,创意无限;
5.绿色环保,板材100%不含石棉等其他有毒物质;
6.防水、防火、耐老化;
7.抗冻融、抗霜冻;
8.强度高、抗冲击、抗风压
9.重量比大理石、瓷砖、玻璃等轻,安装便捷快速,不曲翘、不变形、减少辅材用量,减轻建筑主体外墙荷载,安全可靠。


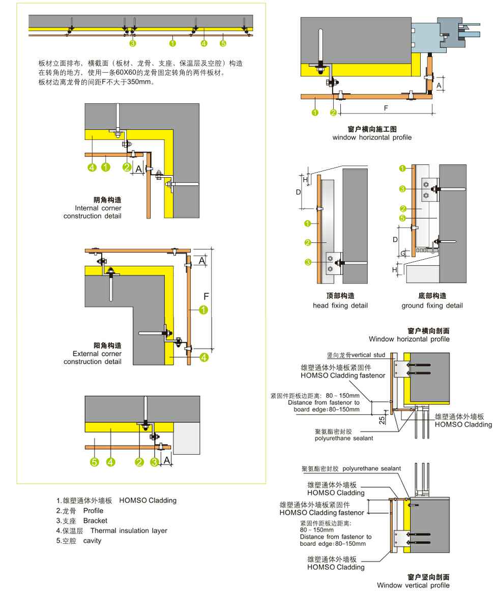
【安装步骤】
万搏官方网页版-万搏(中国)通体外墙板在外墙覆层系统应用中,为安全快捷有效地施工,需做好各项细节处理。
1.通过各项力学计算,包括风荷载、地震荷载、龙骨受力、固定件受力等,确定龙骨、紧固件的尺寸规格、间距及安装方式;
2.用支座将龙骨骨架固定到混凝土或钢结构上;
3.需要安装保温材料时,通过专用紧固件,将保温材料固定于外墙系统后部的墙体之上,对墙体形成一个外保温层;
4.用紧固件将万搏官方网页版-万搏(中国)板按设计规定的排布,固定到龙骨骨架上;
5.万搏官方网页版-万搏(中国)板安装完毕,最后做板材之间的接缝处理。
龙骨骨架结构
万搏官方网页版-万搏(中国)通体外墙板结构
万搏官方网页版-万搏(中国)通体外墙板龙骨骨架一般采用竖向排列,龙骨间距根据尺寸和接缝宽度而定,具体根据设计要求:
板材安装可横向排列,也可纵向排列,每张板四个角为应力释放点,其余为固定安装点,应力释放点钉
孔直径需比其他固定安装点直径大2-4mm。具体参考下图:
万搏官方网页版-万搏(中国)通体外墙板安装节点






